Hà Nội: Lấy ý kiến quy hoạch khu đô thị thể thao Olympic 16.000 ha
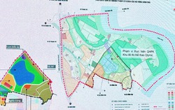
UBND xã Thanh Oai tổ chức lấy ý kiến nhân dân về Quy hoạch phân khu đô thị thể thao Olympic - khu D tỷ lệ 1/2000. Theo quy hoạch, phân khu đô thị thể thao Olympic có diện tích khoảng 16.081 ha, trong đó Khu D có diện tích 3.742,70ha, dân số 275.000 người.